全校师生和广大校友:
校园道路和楼宇的命名,是校园文化建设的重要内容。为进一步加强校园总体规划建设与管理,使校园文化建设与校园总体规划紧密结合,彰显学校百年文化底蕴,共同挖掘学校优秀的精神品质与丰富的人文内涵,发挥环境育人功能,增强凝聚力,构筑师生共有的精神家园,经党委会研究决定,现面向全校师生、员工、广大校友征集校园道路和楼宇命名,现将有关事宜通知如下:
一、征集内容
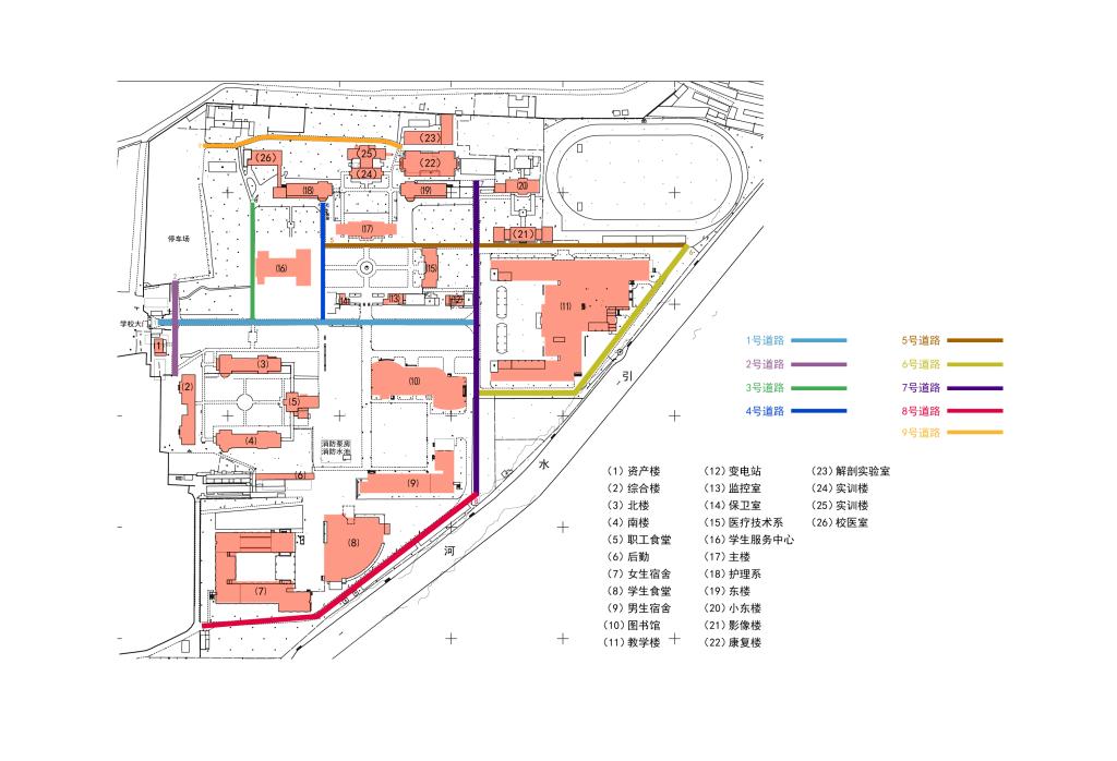
详见校园示意图所标示的9条主要道路和19个楼宇(见附件1)
二、参加对象
全校师生员工、历届校友
三、道路命名的基本原则
(一)充分展现校园文化和教育功能:命名要体现学校人文精神、办学理念和核心价值观,充分体现医学院校特色。各系部、部门独立楼宇名称应融合并体现本系部、部门办学历程、办学理念等内涵,彰显文化环境育人的教育功能。
(二)体现系统性、关联性和整体性:命名要有主线,系统考虑,楼宇名称要兼顾功能、文化为一体。遵循层次化、序列化,科学、合理构建名称结构体系,体现各类命名的整体性。充分考虑区分工作学习区、生活区、休闲娱乐区等的分类因素。例如楼宇可命名为“××楼,××斋,××厅”等等。
(三)规范性:应用汉语命名,符合国家法律规范,符合社会公德,言简意赅、寓意深刻;每个命名由3—5个汉字组成,如“致远路”“博文楼”;应征者应对整体设计思路和每个命名的基本理由作简要说明。
四、时间安排
(一)方案征集阶段(11月30日—12月10日)
1、学校将需要命名道路楼宇通过校园网、官方微信等渠道向全校师生员工和广大校友进行公开发布。
2、广大师生员工和校友提交作品。
(二)方案评审阶段(12月10日—12月17日)
1、党委办公室将征集上来的全部方案汇总整理,组织专家进行评议和初选。
2、召开不同层面的座谈会广泛征求意见。
3、根据广大师生的意见对初选方案进行修改与完善,提出备选方案,并提交学校党委会研究。
(三)方案确定阶段(12月20日前)。
学校确定命名方案,公布命名结果。
五、要求
1、校园道路楼宇命名是全体师生员工统一思想、凝心聚力的过程。各支部、各部门要高度重视,组织支部成员积极参加,每个支部至少报2套以上建议方案。
2、具有独立楼宇的系部、部门,要积极组织内部员工研讨,提交系部、部门意见建议,(在附件2道路楼宇命名征集表注明是系部、部门意见),学校会充分考虑,整体性与特色兼顾。
3、职工提交以支部为单位,学生以班级为单位,校友可直接发送邮箱,均填写附件2打包发送。电子版发送至邮箱(yzdwbgs@tj.gov.cn),文件名称统一以“道路楼宇命名征集+支部(班级或校友单位)”进行标注。
六、奖励
学校将对入围方案及最终确定并使用的方案颁发证书和奖品。
附件1:
道路楼宇命名征集表
附件2:
校园道路示意图
党委办公室
2020年11月29日
附件1:
道路楼宇命名征集表
姓名 |
|
单位(部门/班级) |
|
联系电话 |
|
身份 |
职工/学生/校友 |
整体设计思路: |
序号 |
建议名称 |
释义 |
1号路 |
|
|
2号路 |
|
|
3号路 |
|
|
4号路 |
|
|
5号路 |
|
|
6号路 |
|
|
7号路 |
|
|
8号路 |
|
|
9号路 |
|
|
主楼 |
|
|
东楼 |
|
|
西楼(护理) |
|
|
南楼 |
|
|
北楼 |
|
|
小东楼 |
|
|
医疗技术楼 |
|
|
学生服务中心(在建) |
|
|
教学楼 |
|
|
图书馆 |
|
|
职工食堂 |
|
|
学生食堂 |
|
|
男生宿舍 |
|
|
女生宿舍 |
|
|
后勤小院 |
|
|
康复楼 |
|
|
影像楼 |
|
|
…综合楼(招办、财务等) |
|
|
校医院 |
|
|
|
|
|
注释:1.共有9条道路进行命名,必须填写完整
2.学校楼宇共有26座楼宇,其中19座楼宇命名征集,上交方案中命名的楼宇不少于10个。
3.同一条道路、楼宇都可以有备选方案。
